空气断路器与真空断路器有什么区别
来源:电工天下时间:2022-10-07 08:57:12 作者:老电工手机版>>
有关空气断路器与真空断路器的几点区别,真空断路器到底和空气断路器有什么区别,真空断路器的内部结构比空气断路器简单,故障率低,真空断路器还不能用于直流电路中。
空气断路器与真空断路器的区别
空气断路器,尤其是新手电工,对于真空断路器的接触不是很多,甚至没有听说过。但是看字面意思,有空气断路器,自然会有与之相对的真空断路器。这个真空断路器到底和空气断路器有什么区别?今天我们来简单介绍一下。
所谓的“空气”和“真空”,起初指的是其灭弧装置不同,空气断路器是靠灭弧珊装置,靠拉长电弧,再依靠空气冷却灭弧(什么是弧?就是电弧或者说电火花)。而真空断路器是依靠真空灭弧,里面有一个真空泡。
由此就引发了第二个不同之处,空气断路器在分闸或合闸动作时是依靠压缩空气执行的,而真空断路器由于它高度真空的特性,决定了其不能使用储风室,因此真空断路器靠电阀和电磁铁控制电路的开合。
详细动作过程:
空气断路器动作前储风缸要充满足够的压缩空气;起动阀的D腔充满压缩空气;另有少量的压缩空气经通风塞门、主阀、支持瓷瓶进入灭弧室,使灭弧室内保持一定的正压力,防止外部潮湿空气的侵入。
而真空断路器就不需要专门储风缸,它是靠电空阀和电磁铁控制闭合的,只要列车正常运行,就会有充足的气源供给。
由此可见,真空断路器的内部结构比空气断路器简单得多,因此故障率较低、寿命较长。当然价格也要高得多。一般真空断路器使用在高压或环境较为特殊的场所,因为这些地方对灭弧的要求比较高。
注意,目前真空断路器还不能用于直流电路中。
下图为真空断路器:

空气开关与断路器的区别
空气开关是平常的熟称,它正确的名称叫做空气断路器。空气断路器一般为低压的,即额定工作电压为1Kv。空气断路器是具有多种保护功能的、能够在额定电压和额定工作电流状况下切断和接通电路的开关装置。
它的保护功能的类型及保护方式由用户根据需要选定。如短路保护、过电流保护、分励控制、欠压保护等。其中前两种保护为空气断路器的基本配置,后两种为选配功能。
所以,空气断路器还能在故障状态(负载短路、负载过电流、低电压等)下切断电气回路。
断路器和空气开关到底有什么区别
1.电压等级的区别:一般空气开关适用的电压等级为500V以下,而断路器通常可以适用于220V以上的各电压等级。
2.遮断电流的能力不同:一般断路器能承受的负荷及短路电流更大些。
3.灭弧介质和方式的区别:断路器的灭弧介质和方式不但有空气断路器,还有真空断路器,多油断路器,少油断路器,六氟化硫断路器等。
4.配套设备的区别:一般相对于空开来讲断路器的测量,逻辑及执行部分的机构所配套的设备更复杂一些。
空气开关是一种只要有短路现象,开关形成回路就会跳闸的开关。
断路器按其使用范围分为高压断路器,和低压断路器,高低压界线划分比较模糊,一般将3kV以上的称为高压电器。
低压断路器又称自动开关,它是一种既有手动开关作用,又能自动进行失压、欠压、过载、和短路保护的电器。它可用来分配电能,不频繁地启动异步电动机,对电源线路及电动机等实行保护,当它们发生严重的过载或者短路及欠压等故障时能自动切断电路,其功能相当于熔断器式开关与过欠热继电器等的组合。而且在分断故障电流后一般不需要变更零部件,已获得了广泛的应用。
空气开关和断路器的区别?空气开关的作用?
一、空气开关和断路器的区别
1、断路器:能接通、承载和分断正常电路条件下的电流,也能在规定的非正常电路(例如短路)下接通、承载一定时间和分断电流的一种机械开关电器。
2、塑壳式断路器:具有一个用模压绝缘材料制成的外壳作为断路器整体部件的断路器。
3、空气断路器:触头在大气压力的空气中断开和闭合的断路器
4、真空断路器:触头在高真空管中断开和闭合的断路器
因塑壳式断路器一般使用空气作为灭弧介质,因此有空气开关的俗称,但空气开关的说法其实并不严谨,因开关与断路器是不同的两个概念。
从作用看:
1、空气开关一般在小电流电路中主要起“隔离”和“保护装置”的作用,也叫自动开关,也叫空气断路器;
2、断路器有很好的灭弧能力,在电路短路大电流情况下,自动跳闸;在高电压、大电流电路中,常用作停电、送电,接通、断开负荷的操作电器;
(1)电压等级的区别:一般空气开关合用的电压等级为500V以下,而断路器通常可以合用于220V以上的各电压等级.
(2)遮断电流的能力不同:一般断路器能承受的负荷及短路电流更大些.
(3)灭弧介质和方式的区别:断路器的灭弧介质和方式不但有空气断路器,还有真空断路器,多油断路器,少油断路器,六氟化硫断路器等.
(4)配套设备的区别:一般相对于空开来讲断路器的丈量,逻辑及执行部门的机构所配套的设备更复杂一些.
断路器有真空断路器和SF6断路器等多种型号,它的开断电流要比普通的空气开关大,开断容量也要更大,真空断路器一般用于6KV的系统,SF6断路器用于500KV变电站,两者都用直流110V作为控制电源,由控制信号触发才会动作,一般的空开用在380/220系统,相当于刀闸。
主要区别为电流等级,微型断路器一般为63A以下,塑壳断路器一般为630A以下,空气断路器一般为630A以上。
塑壳断路器也是空气断路器。常用的空气断路器有框架式断路器和塑壳断路器两种,前者的容量大。额定开断电流也大,体积也大,所以没有塑料外壳,断路器的各部分零件装在一个钢框架上。后者的容量相对较小,额定开断电流也小一些,所以体积也小,整个断路器采用塑料外壳保护。一般框架式断路器用于电流较大的电源回路上,而塑壳断路器用于负荷回路上。
二、空气开关的作用
在正常情况下,空气开关的过电流脱扣器的衔铁是释放着的;一旦发生严重过载或短路故障时,与主电路串联的线圈就将产生较强的电磁吸力把衔铁往下吸引而顶开锁钩,使主触点断开。欠压脱扣器的工作恰恰相反,在电压正常时,电磁吸力吸住衔铁,主触点才得以闭合。一旦电压严重下降或断电时,衔铁就被释放而使主触点断开。当电源电压恢复正常时,必须重新合闸后才能工作,实现了失压保护。
以上介绍了有关空气开关和断路器的区别以及空气开关的作用的全部知识,空气开关和断路器的区别很大,在选购的时候,一定要选择合适自己家的,不要盲目的购买和安装。
相关文章真空断路器弹簧操作机构合闸储能回路的故障问题

有关真空断路器的故障问题,在真空断路器的使用过程中,出现了弹簧操作机构合闸储能回路中的故障问题,一般是什么原因引起的,故障危害有哪些,处理方法与预防措施有哪些,一起来看下。
时间:2022-01-24 05:18:51
真空断路器分闸失灵的故障问题

有关真空断路器的知识,真空断路器在使用时出现分闸失灵的现象,这是什么原因引起的,以下分析了真空断路器分闸失灵的原因,并给出了相关处理方法和预防措施,供大家参考。
时间:2022-01-24 05:15:48
真空断路器真空泡真空度降低的故障问题

有关真空断路器的知识,当出现真空泡真空度降低的问题时,应该从哪些方面来查找原因,以及真空断路器真空泡真空度降低的处理方法有哪些,下面来看下。
时间:2022-01-24 05:12:48
真空断路器图片及电气符号

真空断路器图片及电气符号,如下图所示,一次系统元件:真空断路器。功能:用于控制和保护高压电气设备,下面具体来看下。
时间:2022-01-16 05:16:28
户外高压真空断路器的五大技术参数

户外高压真空断路器的五大技术参数,主要包括断路器的额定电压、最高工作电压、额定电流、额定断路电流及合闸时间、分闸时间,供大家学习参考。
时间:2022-01-04 06:21:59
真空断路器跳闸失灵的处理方法

在真空断路器运行过程中,可能会出现跳闸失灵的的问题,分为三种情况:一是运行中红色指示灯不亮,二是光字牌发出“控制回路断线’信号,三是光字牌发出“电压回路断线”信号。
时间:2021-12-03 05:38:05
真空断路器拒跳时的操作项目

真空断路器拒跳时的操作项目,当真空断路器发生拒跳时,可以进行如下操作项目:1、将拒跳真空断路器经倒闸操作倒至单独的一段母线上,与母联断路器串联运行,即用母联断路器的保护代替拒跳断路器的保护。
时间:2021-12-03 05:32:38
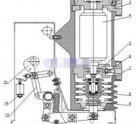
真空断路器内部结构图及编号说明

真空断路器内部结构图及编号说明,在下图中序号对应真空断路器结构图的编号,共有15项,主要包括:1.绝缘筒2. 上支架3. 上出线座4. 真空灭弧室等。
时间:2021-12-03 05:30:25
- 上一篇:断路器拒绝跳闸故障问题处理方法
- 下一篇:家用空气开关的选择选型原则





